Fönsterblogg.se hamburgershape

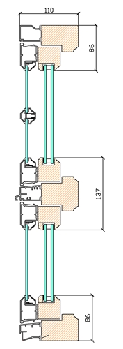
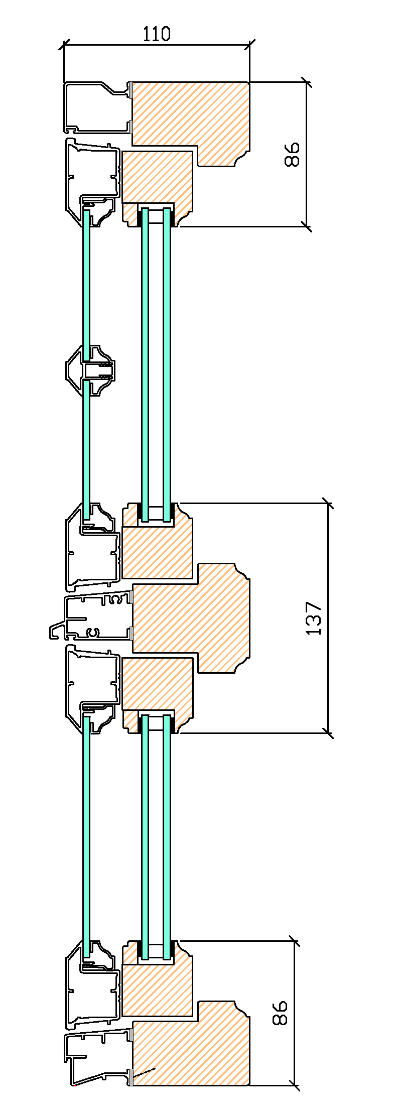
Utåtgående fönster 2+1, Trä/alu – Profilsnitt

Nyhet!, nu har vi efter kundernas efterfrågan tagit fram vårat vackra utåtgående kopplade 2+1 allmogefönster även med aluminiumutsida. Vår konstruktion är lite unik då vi delar skarven mellan trä/aluminium längre in i konstruktionen där inget vatten normalt ska komma åt, det gör vårat fönster helt skyddat mot angrepp i trädelen på konstruktionen. Fönstret har fortfarande våra vackra allmogeprofilerade spröjs som är i stort identisk med vårat traditionella allmogefönster i trä men  då med aluminiumutsida. Invändigt har vi dom vackra fönsterlåsen men går även att beställa med handtag. Ljusinsläppet är viktigt på allmogefönster för att efterlikna dom gamla förlagorna, vårat har tunna både bågar/spröjs och karmar. Alla gångjärn har som standard zinkaloy silver behandling som är 5-10 gånger bättre än en vanlig förzinkning. Fönstret får ett lågt energivärde och ett gammalt gediget utseende som passar in i hus där vackra fönster behövs.
Leverantör av våra strängpressade aluminiumprofiler är SAPA i Vetlanda.

Profilsnitt från sidan

Profilsnitt från sidan

Profilsnitt ovanifrån

Profilsnitt ovanifrån

Spröjs, utvändigt aluminium

Spröjs, utvändigt aluminium