Fönsterblogg.se hamburgershape

Kondensproblem

Kondensbildning på fönster med flera rutor

Per-Olof Marklund
Snickerifabrikernas Riksförbund

 

» Ladda hem hela sidan som ett pdf-dokument

Kondensbildning på fönster är inte önskvärt av flera skäl: Sikten genom glaset försämras och kondensvattnet rinner ned och skadar målningen på bågar och karm och kan då föranleda röta. Detta är en sammansättning av de frågeställningar som uppkommer i samband med kondensbildning på fönster och har tillkommit på initiativ av Snickerifabrikernas Riksförbund Fönstergrupp för att om möjligt kunna undvika onödiga kondensproblem.

Så uppkommer kondens (imma)

Genom att den relativa fuktigheten i luft sjunker när luften värms är vanligtvis den varma rumsluften relativt sett torr under vinterförhållanden. Den har då en tendens att suga åt sig vatten från organiska material, varför vatteninnehållet i luften ökas. Vatten eller fukt tillförs även från personer. En människa i vila avger c:a en liter vatten per dygn och avdunstningen ökas vid ökad aktivitet. Vid en sänkning av temperaturen ökas relativa fuktigheten och vid en viss temperatur uppstår mättning, varvid en ytterligare temperatursänkning orsakar att vatten faller ut som dagg eller imma. Träffar den varma inneluften en kall yta vars temperatur är under luftens daggpunkt uppstår kondens på ytan. Detta kan ibland inträffa på fönster och speciellt när varm inneluft strömmar ut genom springor kring fönstret och kommer i kontakt med den kalla yttre glasrutan. Anledningen till att varm inneluft strömmar ut genom ett fönster kan vara att det blåser och fönstret är placerat på uteluften husets läsida. Det kan även bero på ett luftbehandlingssystem som ger övertryck i huset, vilket dock vanligtvis inte varit konstruktörens avsikt. Den vanligaste anledningen är s k skorstensverkan vilken uppstår i ett högt hus vid kall väderlek. Det uppstår ett undertryck i husets nedre del, där luft då söker sig in och ett övertryck i övre delen där luften försöker strömma ut.

Innåtgående fönster

Så undviks kondensbildning

Kondens på ytterglasets insida: Luftfuktigheten mellan glasen kondenserar på det yttre, kallare glasets inneryta om glasets temperatur understiger daggpunkten för luften mellan glasen. Kondensbildningen uppträder antingen i form av vatten eller is och bildas i första hand på glasets nedre del där temperaturen är lägst. Temperaturen hos fönsterglaset är sällan lägre än temperaturen hos luften vid fönstrets utsida. Kondensering på glaset är därför som regel möjlig endast om, den absoluta fuktigheten hos luften mellan glasen är högre än hos uteluften.

Utåtgående fönster

Vid utåt- och inåtgående fönster med kopplade bågar av trä, kan kondens (imbildning, eventuellt rimfrost) i allmänhet undvikas genom nöjaktig ventilation mellan bågarna. Det är då viktigt att:

  • Tätningslisten anbringas enligt listfabrikantens anvisningar mellan innerbåge och karm
  • Ventilationsspringorna mellan ytter- och innerbåge är cirka 1,5 mm och avståndet mellan karmen och ytterbågen cirka 2 mm, se figur 1
  • Persiennlådan ej tätar ventilationsspringan mellan bågarna upptill
  • Husets fasad och/eller tak är utformat på ett för luftcirkulationen riktigt sätt. Andra vanliga orsaker till kondensbildning kan vara
  • Fukt intill husgrunden (första året)
  • Felaktig utformning av plåtbröstning
  • Kall vind i kombination med solsken

Genom att tätningen anbringas mellan innerbågen och karmen hindras den varma, fuktiga rumsluften att tränga in i det kallare utrymmet mellan rutorna, där den skulle kunna kondensera mot ytterrutan. Eventuella mindre mängder fuktig luft, som likväl passerat förbi den nämnda tätningen, ventileras bort av den mellan rutorna cirkulerade torrare uteluften. Denna självcirkulation sker genom att ytterluft uppvärms något av den varmare innerrutan och därvid stiger uppåt och lämnar fönstret genom ventilationsspringan upptill.

Figur 2 Placering av fönsterbänk vid fönster:

Rätt luft flöde

Denna luftcirkulation får emellertid inte vara alltför intensiv eftersom detta skulle kunna leda till så hastig nedkylning av innerrutan att rumsluften kondenserar på insidan av innerutan.Fönstrets värmeisolerande egenskaper blir dessutom avsevärt försämrade. Springan mellan ytter- och innerbågar får alltså varken vara förstor eller för liten, se figur 1.

Kondens på innerglasets insida

Kondensbildning på insidan av det inre glaset inträffar ofta bakom gardiner särskilt rullgardiner, och beror på att luftomsättningen hindras så att innerglasets temperatur understiger rumsluftens daggpunkt. Vid kondensbildning bör nedanstående iakttagas för de olika klimatiskaförhållandena som kan uppträda vid olika temperaturer och luftfuktigheter samt vid olika typer av uppvärmning och luftcirkulation:

Olika ute- och innetemperaturer plus hög relativ luftfuktighet

Vid hög relativ luftfuktighet inomhus och låg utomhustemperatur kan kondens uppträda på fönstrets insida om tillräcklig luftströmning mot det inte glaset ej kan åstadkommas. Om man stänger av värmen nattetid ökar risken för kondensering ytterligare när hög relativ luftfuktighet råder inomhus. Då uppstår precis samma fenomen som i våra parker och trädgårdar när daggen faller på kvällen, skillnaden är bara den att i rummet faller daggen på den kallaste ytan dvs fönstret.

fel luft flöde

Djupa fönsternischer och/eller felaktigt placerade fönsterbänkar
Från en fönsteryta går en kall, nedåtriktad luftström, som känns som drag. En radiator under fönstret åstadkommer en uppåtriktad varmluftström. För att en person intill fönstret ej skall känna något drag måste den varma luftströmmen så att den därvid stiger rätt uppåt. Detta underlättas om radiatorn åstadkommer en kraftig uppåtgående varmluftström utefter fönstrets hela bredd och om denna varmluftström leds på lämpligt sätt. För att undvika kondens bör radiatorn ha en längd som ungefär motsvarar fönstrets bredd. För att leda luftströmmen riktigt måste man ta hänsyn till utformning och placering av fönsterbröstning och fönsterbänk. Då hastigheten på den varma luftströmmen snabbt sjunker vid riktningsändringar bör sådana undvikas eller göras så små som möjligt. Fönsterbröstning med slänt i förening med friliggande fönsterbänk är därför alltid gynnsam. Vid låg utomhustemperatur kan således kondens på glaset och fönstersnickerierna bero på djupa fönsternischer eller felaktigt placerade fönsterbänkar, där det är mycket svårt att styra in den varmluft som behövs för att hindra kallras utefter glasytan. För att undvika kondensbildning är det således viktigt att djupa fönsternischer utförs på ett för luftcirkulationens riktigt sätt samt att fönsterbänkarna placeras riktigt, se figur 2.

 

Uppvärmning med varmvattenradiator
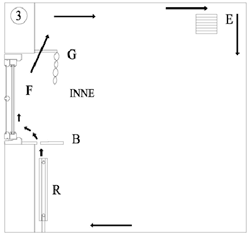
Radiatorn i figur 3 är en radiator där värmemediet är varmvatten med temperaturen max 80°C. I figur 3 uppvärms luften vid radiatorn (R), stiger uppåt och kan passera mellan fönsterbågen och fönsterbänken (B), och följa fönstret (F) uppåt mot taket. Detta är idealfallet med en värmekälla ute vid den kallaste delen av rummet. Man har dessutom en aktiv evakuering (E), (frånluftsdon) för att få omsättning på luften. Ersättningsluft kommer genom de otätheter som normalt förekommer i fönster, självdragsventilation. Systemet är det i särklass vanligaste i Sverige. Här förekommer ytterst sällan några problem med kondens när varmvattenradiatorn håller en lämplig temperatur under uppvärmningssäsongen.

Figur 3. Rumsluftens cirkulation intill fönstret, varmvattenradiator

rumsluftens cirkulation

Uppvärmning med elradiator – värmelist
Om man som i figur 4 byter till elradiatoruppvärmning och då väljer en genomströmningsradiator typ värmelist uppstår plötsligt ett helt annat förhållande. Jämfört med varmvattenradiatorer har vissa elradiatorer avsevärt högre yttemperatur ( får ej övertäckas). Elradiatorn (R) strålar ut värme i rummet och det känns behagligt nät man sitter. Strålarna träffar möbler och övriga inventarier som värms upp. Dessa avger sin värme till luften som stiger uppåt från möblerna mot taket. Emedan fönstret ej blir värmt på samma sätt som med varmvattenradiatorn och luftströmmen uppåt från elradiatorn blir svagare kan det uppstå kallras och kondensering på fönstret (F). Väljer man en ellist med låg och jämn temperatur behöver detta fenomen aldrig uppstå.

Figur 4.Rumsluftens cirkulation intill fönstret, ”elradiator”.

Rumsluftens cirkulation

Kondensbildning förorsakad av gardinarrangemang och/eller persienn
En rent arkitektonisk felkonstruktion redovisas i figur 5 där man placerat fönsterbågen i väggytterliv och på så sätt skapat en mycket djup fönsternisch. Hur hög temperatur man än väljer på radiatorn (R) kan man inte få fram någon varmluft till glasytan. Den förblir kall till följd av låga utomhustemperaturer. Luften vid glaset kyls också och sjunker nedåt medan varmluften som kommer upp genom springan i fönsterbänken (B) hjälper luften att stiga igen inne vid gardinarrangemanget (G). Här bildas alltså en lokal luftcirkulation i fönsternischen (F).

Figur 5. Rumsluftens cirkulation intill fönstret, ”fönsternisch och nerdragen gardin”.

Rumsluftens cirkulation

Eftersom tillförseln av värme är relativt ringa jämfört med den värme som går utanför fönsterbänken, blir det undertemperatur i den lokala luftcirkulationen jämfört med övriga rummet. När luften kyls ned utefter glasytan finns det risk för att det bildas kondens på fönstret. Huvudsakligen uppträder kondens i nederkanten på fönstret där luften är som kallast. Här är det nästan omöjligt att komma till rätta med problemet om man ej monterar in en fläkt så att man får ett system som i princip fungerar som defrostern på våra bilar. Eftersom fönstret är den svagaste länken i ytterväggskonstruktionen beträffande värmeisoleringen och att innerglasytan således är den kallaste innerytan hos träfönstret måste glasytan därför tillföras mer värme än övriga ytor för att inte kylas ner när utomhustemperaturen sjunker.

Kondens på ytterglasets insida:

Är huset nybyggt?

Fukt från husgrunden kan genom skorstensverkan intill den soluppvärmda fasaden transporteras i form av vattenånga med den stigande varmluftströmmen och kondensera på den kalla glasytan. Fenomenet upphör i regel efter ett år sedan byggfukten torkas ur.

Sammanfattning:

När kondensproblem uppstår är det viktigt att försöka fastställa orsakerna. Vanligtvis är det en serie av olyckliga omständigheter som ger upphov till kondensbildning. Man kan angripa en del av dem och få en viss förbättring.

Att iakttaga vid kondensbildning

Här följer en lista på de detaljer man i första hand bör undersöka när kondens (imma, rimfrost) bildas på ytterglaset respektive innerglasets insida.

Hur har tätningen av fönsterkonstruktionen utförs?

Tätningen mellan karm och båge kan vara felaktigt utfört. Se till att fönsterkonstruktionen luftas med uteluft men att fönstret är vindtätt i den inre bågen.

Har byggnaden där fönstret är monterat speciell tak och/eller fasadutformning?

Vissa typer av tak- och/eller fasadutformning kan vid ogynnsamma klimatförhållanden orsaka kondensproblem på glasrutor, beroende på att utformningen kan medföra försämrad luftcirkulation intill det väggparti där fönsterkonstruktionen är monterad. Kan åtgärdas med lämplig utförd luftcirkulation eller liknande åtgärder.

Är fönstrets plåtbröstning utförd riktigt?

En felaktigt utförd plåtbröstning kan vålla kondensproblem. Kontakta den som utfört plåtbröstningen för att få rätsida på kondensproblemet.

Vilka klimatiska betingelser råder?

Solsken i kombination med kall vind kan ge tillfälligt upphov till kondens. Behöver i allmänhet ej åtgärdas då det endast är fukt som avdunstar från fönsterbågen som kondenserar.

Kondens på innerglasets insida:

Vilken typ av rumsuppvärmning har man?

Luftcirkulationen i rummet kan vara dålig på grund av intermittent värme, elradiator. Varmluftsinblåsning bör styras så att den blåser in utefter hela fönstrets bredd i underkant.

Kan luften som kommer från värmekällan ledas fram till fönstret och värma upp glasytorna?

Eventuellt behöver fönsterbänken monteras om, så att luften kan smita förbi och upp mot glaset.

Finns det kraftiga gardiner eller täta kornischer som hindrar luften att cirkulera vid fönstret?

Även uppvärmningssystemet enligt figur 3 ovan kan spolieras om inte luften kan komma vidare upp mot taket.

Brukar man ha persienner eller rullgardiner intill glaset under vissa perioder av dygnet?

Mellan avskärmning och glas blir ett skikt av stillastående luft som kan orsaka lägre temperatur på glaset. Flytta in arrangemanget så att varmluft kan söka sig upp mellan avskärmning och glas samt ut i överkant mot taket.

Blåser man in befuktad luft i byggnaden?

Försök att minska befuktningen eller öka värmeisoleringen med extra glas i fönstret.

Håller man onormalt låg eller stark varierande rumstemperatur under delar av dygnscykeln?

Jämna ut temperaturen och reducera lufttillförseln.

Förekommer djupa fönsternischer?

Försök att styra in luften mot fönstret, eventuellt genom ändring av fönsternischen eller dylikt. Ordna så att luften kan styras ut och upp mot taket i fönstrets överkant.

Är huset nybyggt?

Det är vanligt att s k byggfukt finns kvar i huset intill ett år efter inflyttning. Denna försvinner successivt vid genomvädring av lägenheter. Öka luftcirkulationen. Avvakta med andra åtgärder om Ni ej kan finna något påtagligt fel.

Är ventilationen i övrigt underdimensionerad?

Hög relativ luftfuktighet på grund av bristfällig vädring kan ge kondens på glasets insida. Evakuera fuktig rumsluft och ersätt den med uppvärmd utomhusluft.

Har man ett specialsystem för rumsuppvärmning vilket ej kan hänföras till någon av ovannämnda system?

Kontakta den som levererat uppvärmningssystemet för att få rätsida på kondensproblemet.

« Tillbaka